Offre spéciale

- 3 000€ sur vos frais de notaire

Plans de maisons de 150m² à télécharger

Vous avez le projet de faire construire une maison ? La construction d'une maison implique d'acheter en même temps le terrain qui accueillera votre futur foyer. C'est pourquoi Tanaïs Habitat vous propose un outil personnalisé d'offres de maison et de terrain à acquérir. Grâce à cet outil, vous pouvez mieux préparer votre achat et vous projeter dans votre nouvel habitat.

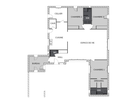
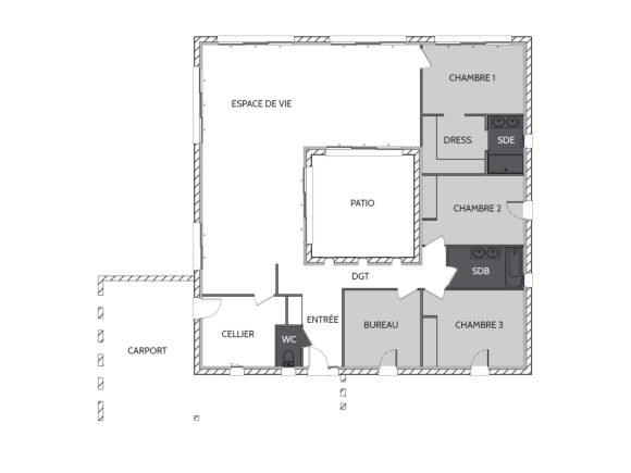
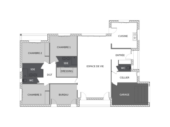
7 plans de maison correspondent à votre recherche

Surface habitable de 150m² à 159m²

vos filtres

Pour votre projet immobilier, trouver un plan de maison 150m2

Vous trouverez de nombreux plan maison moderne pour des surfaces de 150m2, autant pour des projets de construction de maison de plain pied qu'à étage. Dans le cadre d'un projet immobilier, vous pouvez compter sur nos plans qui sont de qualité. En fonction de votre choix de maison, de style architectural et selon le budget disponible, vous trouvez un assortiment de plan maison 150m2 répondant aux normes de construction récentes. Suivant vos priorités, vous pouvez opter pour un style écologique, traditionnel ou encore moderne. Le choix de plan maison contemporaine disponible sur le site est particulièrement varié. Grâce à nos experts, vous découvrez des plan maison 150m2 dans lesquels vous pouvez sans peine vous projeter. Pour vous faire une idée plus précise du potentiel des maisons que vous pouvez envisager pour votre projet, découvrez nos différentes réalisations afin de découvrir le rendu au niveau de l'architecture intérieure et des aménagements extérieurs.

Votre maison 150m2 sur mesure grâce à des plans de qualité

Le choix de plan maison proposé permet aux familles, aux couples ou encore aux célibataires de planifier un projet de construction selon leurs souhaits individuels. Pour cela, la réalisation d'un projet immobilier nécessite de sélectionner des plans répondant parfaitement aux critères et attentes, mais également au budget.

Ci-après, vous trouvez une sélection de projets adaptés à la construction de maison 150m2 dans différents styles, ainsi que des suggestions d'aménagement intérieur et extérieur très variées. Préparés par des architectes qualifiés, ce sont des plans qui permettent de vous projeter dans votre nouvel habitat. En fonction de vos attentes, consultez notre choix de plan de maison moderne ou traditionnelle, ou encore nos terrains à vendre. Nous sommes désireux de proposer des plans maison de 150m2 qui répondent à vos attentes à 100%.


Ce plan de maison vous inspire ?

Pour débuter votre projet, inspirez-vous de nos plans de maison en téléchargement.

Les champs marqués(*) sont obligatoires.