Plans de maisons de 100m² à télécharger

Vous avez le projet de faire construire une maison ? La construction d'une maison implique d'acheter en même temps le terrain qui accueillera votre futur foyer. C'est pourquoi Tanaïs Habitat vous propose un outil personnalisé d'offres de maison et de terrain à acquérir. Grâce à cet outil, vous pouvez mieux préparer votre achat et vous projeter dans votre nouvel habitat.

3 plans de maison correspondent à votre recherche

Surface habitable de 100m² à 109m²

vos filtres


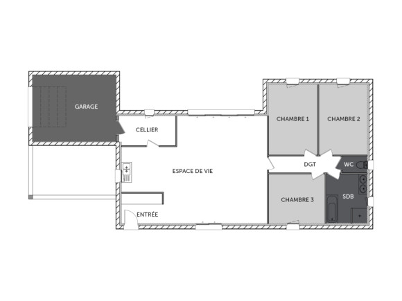
Ce plan de maison vous inspire ?

Pour débuter votre projet, inspirez-vous de nos plans de maison en téléchargement.

Les champs marqués(*) sont obligatoires.