Offre spéciale

- 3 000€ sur vos frais de notaire

Plans de maisons de 200m² et plus à télécharger

Pour une surface habitable de 200 m² et +, le plan de maison se présente comme une étape essentielle pour le futur propriétaire. De plain-pied, à étage, carré ou autres, les plans de maisons proposés par Tanaïs Habitat sont aisément personnalisables pour une construction réellement sur-mesure. Les plans disponibles ci-dessous vous offrent un aperçu de ce que sera votre habitation.

3 plans de maison correspondent à votre recherche

Surface habitable à partir de 200m²

vos filtres

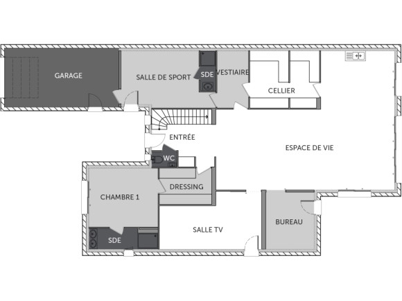
Visualisez votre maison avant le début des travaux

Les plans de maisons ont un rôle de guide suprême pour les corps de métiers qui vont se succéder sur le chantier. Ces documents sont également essentiels pour le futur propriétaire en donnant une première vision de la construction et de la disposition des pièces. Chez Tanaïs Habitat, le plan de maison moderne ou traditionnelle n’a rien de figé. Le client est en effet incité à apporter ses idées et faire part de ses souhaits.

Une fois vérifié que ces compléments respectent les contraintes techniques et les règles d’urbanisme, ils sont intégrés et le plan maison modifié en conséquence. Tout en partant d’une même base, votre future maison devient ainsi une réalisation sur-mesure.

Le choix du terrain, une autre étape essentielle

Pour concevoir un plan maison contemporaine, il est nécessaire de savoir où la construction va être réalisée. La Gironde offre de nombreux lieux où il fait bon vivre, qu’il s’agisse d’une maison en lotissement ou isolée. Tanaïs Habitat dispose d’un large choix de terrains à bâtir répondant à l’immense majorité des souhaits et des budgets.

Pour un plan maison 200m2 et plus, la superficie du terrain doit permettre un maximum d’aménagements, qu’il s’agisse de ceux techniques ou esthétiques. Ces équipements peuvent être variés comme une piscine, une dépendance, un garage supplémentaire ou tout autre envie en matière d’aménagement.

Un constructeur à votre écoute

Avec Tanaïs Habitat, vous bénéficiez des conseils avisés d’un constructeur implanté en Gironde depuis plus de 40 ans.

La notoriété acquise ne doit rien au hasard en étant le reflet de son professionnalisme portant sur l’ensemble des étapes de la réalisation de la construction. Du plan aux finitions, vous êtes assurés d’un chantier suivi avec la plus grande attention.

N’hésitez pas à nous contacter pour tout renseignement complémentaire sur nos plans de maisons ou autres, notre équipe est à votre entière disposition. 


Ce plan de maison vous inspire ?

Pour débuter votre projet, inspirez-vous de nos plans de maison en téléchargement.

Les champs marqués(*) sont obligatoires.