Offre spéciale

- 3 000€ sur vos frais de notaire

BOSSEOS maison à étage de 5 chambres avec un garage

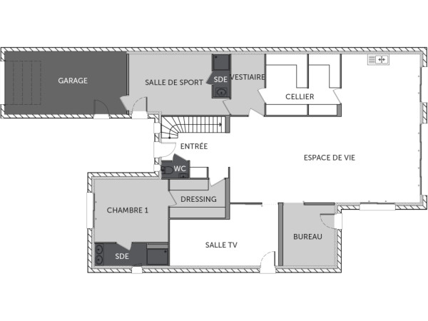
Grande maison contemporaine de 260 m² habitables en toiture terrasse vous offrant une qualité irréprochable composée au rez-de-chaussée d'une pièce de vie de plus de 50 m² très lumineuse grâce aux baies coulissantes dont une de 4 mètres ouvrantes sur terrasses et petit préau. Une cuisine aménagée et équipée, une arrière cuisine, une buanderie, salle de sport, salle TV, bureau, une suite parentale avec salle d'eau et dressing ainsi qu'un garage. A l'étage : un dégagement, 4 chambres, une salle de jeux, une salle de bains, une salle d'eau et une toiture terrasse accessible spacieuse.

Pour vous assurer un confort de vie et conformément à la RE2025, nous avons choisi un mode de chauffage par PAC + plancher chauffant, volets roulants électriques. Prix hors peinture, décoration, revêtements de sol dans les chambres, cuisine équipée), frais de notaire, raccordements, dommage ouvrage.

(Piscine non contractuelle, non comprise dans le prix).

259 m2

5 ch

3 salles de bain

1 garage

Nous contacter pour cette maison

Plan(s) de la maison BOSSEOS

Plan (maison 312)
Plan (maison 312)

Les + de la maison BOSSEOS

Mais au fait on parle, on parle, mais avez-vous pensé
à commencer votre projet ?

Visites virtuelles 360°

Découvrez nos visites virtuelles 360° HD et explorez l’intérieur de nos maisons modernes. Naviguez de pièce en pièce, appréciez les volumes, les aménagements et les finitions de chaque espace. Une expérience immersive qui vous permet d’imaginer votre future maison neuve, depuis chez vous.

Toutes les visites virtuelles
Visites virtuelles 360°
MC1629TS_BOSSEOS_Arriere.jpg

Cette maison vous intéresse ?

Pour estimer le coût de construction de ce projet de maison, plus de renseignements ou prendre rendez-vous, remplissez le formulaire ci-dessous

Les champs marqués(*) sont obligatoires.