Offre spéciale

- 3 000€ sur vos frais de notaire

MARCILLAC maison à étage de 4 chambres avec un garage

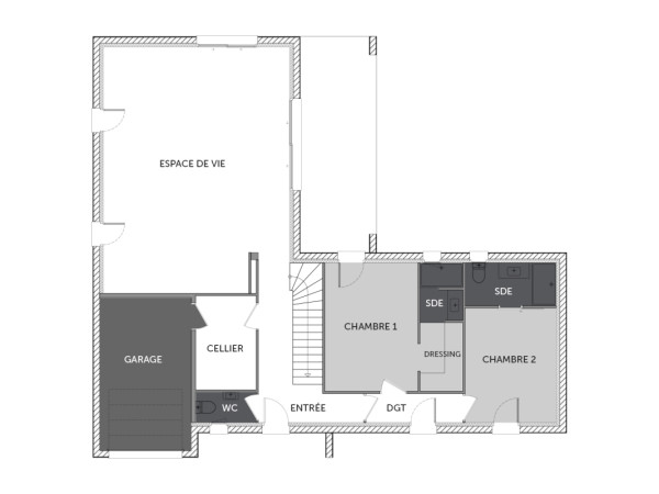
Très belle maison à étage de 140 m² composée au rez-de-chaussée d’une entrée, d'un espace de vie de 53 m², deux chambres avec salle d'eau privative chacune  et un dressing, celier et garage. A l'étage, un dégagement dessert deux chambres avec salle d'eau et wc. Le plus pour cette maison, la terrasse couverte de 17 m² vous prolongera l’été.

Pour vous assurer un confort de vie et conformément à la RE2025, nous avons choisi un mode de chauffage par PAC + plancher chauffant, volets roulants électriques. Prix hors peinture, décoration, revêtements de sol dans les chambres, cuisine équipée), frais de notaire, raccordements, dommage ouvrage.

 

151 m2

4 ch

2 salles de bain

1 garage

Nous contacter pour cette maison

Plan(s) de la maison MARCILLAC

Plan (maison 342)
Plan (maison 342)

Les + de la maison MARCILLAC

Mais au fait on parle, on parle, mais avez-vous pensé
à commencer votre projet ?

Visites virtuelles 360°

Découvrez nos visites virtuelles 360° HD et explorez l’intérieur de nos maisons modernes. Naviguez de pièce en pièce, appréciez les volumes, les aménagements et les finitions de chaque espace. Une expérience immersive qui vous permet d’imaginer votre future maison neuve, depuis chez vous.

Toutes les visites virtuelles
Visites virtuelles 360°
TS1732-MARCILLAC_Arriere.jpg

Cette maison vous intéresse ?

Pour estimer le coût de construction de ce projet de maison, plus de renseignements ou prendre rendez-vous, remplissez le formulaire ci-dessous

Les champs marqués(*) sont obligatoires.