Offre spéciale

- 3 000€ sur vos frais de notaire

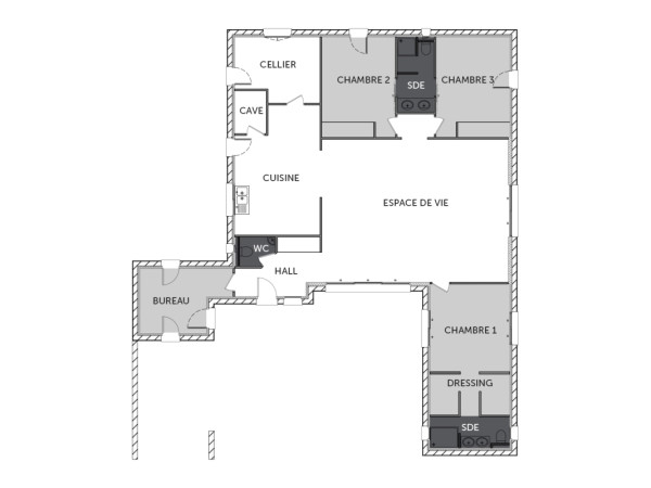
BISCAROSSE maison de plain-pied de 4 chambres sans garage

Maison d’architecte idéale pour terrain en ville avec orientation du séjour de 48 m² plein sud, très bel espace cuisine familiale de 18 m², une suite parentale séparée, 2 chambres avec sde, et un bureau séparatif, abri voiture.

Pour vous assurer un confort de vie et conformément à la RE2025, nous avons choisi un mode de chauffage par PAC + plancher chauffant, volets roulants électriques. Prix hors peinture, décoration, revêtements de sol dans les chambres, cuisine équipée), frais de notaire, raccordements, dommage ouvrage.

(Piscine non contractuelle, non comprise dans le prix).

155 m2

4 ch

2 salles de bain

Nous contacter pour cette maison

Plan(s) de la maison BISCAROSSE

Plan (maison 335)

Les + de la maison BISCAROSSE

Mais au fait on parle, on parle, mais avez-vous pensé
à commencer votre projet ?

Visites virtuelles 360°

Découvrez nos visites virtuelles 360° HD et explorez l’intérieur de nos maisons modernes. Naviguez de pièce en pièce, appréciez les volumes, les aménagements et les finitions de chaque espace. Une expérience immersive qui vous permet d’imaginer votre future maison neuve, depuis chez vous.

Toutes les visites virtuelles
Visites virtuelles 360°
Maison

Cette maison vous intéresse ?

Pour estimer le coût de construction de ce projet de maison, plus de renseignements ou prendre rendez-vous, remplissez le formulaire ci-dessous

Les champs marqués(*) sont obligatoires.