Offre spéciale

- 3 000€ sur vos frais de notaire

CLERAC maison de plain-pied de 4 chambres avec un garage

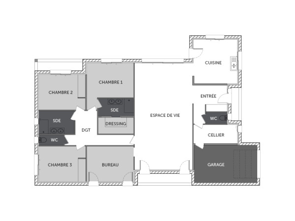
Très jolie maison de plain-pied de 157 m² habitable, composée d'une très entrée qui s'ouvre sur un très bel espace de vie  de 44 m² baigné de lumière grâce à ses deux baies vitrées, d'un coin cuisine séparé de 14 m², d'une suite parentale avec dressing, salle d'eau, 3 autres belles chambres avec salle d'eau indépendante et un cellier communiquant avec le garage.

Pour vous assurer un confort de vie et conformément à la RE2025, nous avons choisi un mode de chauffage par PAC + plancher chauffant, volets roulants électriques. Prix hors peinture, décoration, revêtements de sol dans les chambres, cuisine équipée), frais de notaire, raccordements, dommage ouvrage.

157 m2

4 ch

2 salles de bain

1 garage

Nous contacter pour cette maison

Plan(s) de la maison CLERAC

Plan (maison 340)

Les + de la maison CLERAC

Mais au fait on parle, on parle, mais avez-vous pensé
à commencer votre projet ?

Visites virtuelles 360°

Découvrez nos visites virtuelles 360° HD et explorez l’intérieur de nos maisons modernes. Naviguez de pièce en pièce, appréciez les volumes, les aménagements et les finitions de chaque espace. Une expérience immersive qui vous permet d’imaginer votre future maison neuve, depuis chez vous.

Toutes les visites virtuelles
Visites virtuelles 360°
Maison

Cette maison vous intéresse ?

Pour estimer le coût de construction de ce projet de maison, plus de renseignements ou prendre rendez-vous, remplissez le formulaire ci-dessous

Les champs marqués(*) sont obligatoires.