Offre spéciale

- 3 000€ sur vos frais de notaire

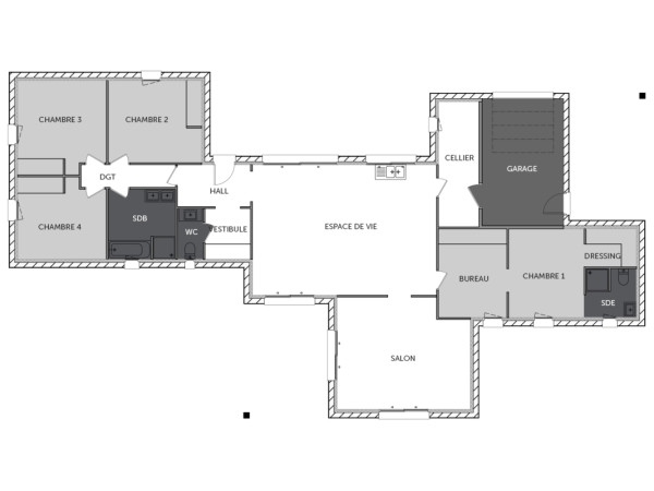
TOUVERAC maison de plain-pied de 5 chambres avec un garage

Découvrez ce modèle spacieux et élégant, pensé pour conjuguer confort et modernité. Son vaste espace de vie de plus de 37 m², baigné de lumière, est le cœur de la maison, idéal pour des moments de partage en famille ou entre amis. Côté nuit, chacun profite de son intimité avec 3 chambres bien agencées, dont une suite parentale de plus de 17 m² avec dressing et salle d’eau privée. Une belle salle de bain supplémentaire et un bureau de 9 m² complètent cet espace harmonieux. Pratique et fonctionnelle, cette maison dispose également d’un grand cellier et d’un garage attenant. Son architecture moderne et ses espaces optimisés s’adaptent à votre style de vie. Pour un confort optimal et conforme à la RE2025, cette maison dispose d’une PAC avec plancher chauffant et volets roulants électriques.  À noter : Le prix indiqué exclut les revêtements de sol des chambres, la cuisine aménagée, la peinture, la décoration, les raccordements, les frais de notaire et l’assurance dommages-ouvrage.

Imaginez, personnalisez, construisez : votre maison idéale n’attend que vous ! Contactez-nous pour en savoir plus.

166 m2

5 ch

1 salle de bain

1 garage

Nous contacter pour cette maison

Plan(s) de la maison TOUVERAC

Plan (maison 347)

Les + de la maison TOUVERAC

Mais au fait on parle, on parle, mais avez-vous pensé
à commencer votre projet ?

Visites virtuelles 360°

Découvrez nos visites virtuelles 360° HD et explorez l’intérieur de nos maisons modernes. Naviguez de pièce en pièce, appréciez les volumes, les aménagements et les finitions de chaque espace. Une expérience immersive qui vous permet d’imaginer votre future maison neuve, depuis chez vous.

Toutes les visites virtuelles
Visites virtuelles 360°
Maison

Cette maison vous intéresse ?

Pour estimer le coût de construction de ce projet de maison, plus de renseignements ou prendre rendez-vous, remplissez le formulaire ci-dessous

Les champs marqués(*) sont obligatoires.