Offre spéciale

- 3 000€ sur vos frais de notaire

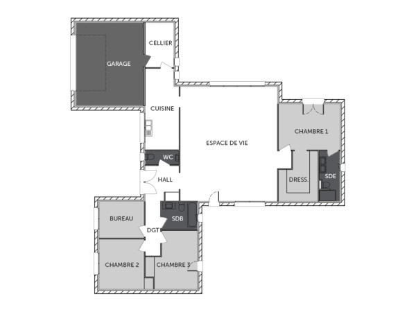
CAVIGNAC maison de plain-pied de 3 chambres avec un garage

Offrez-vous une maison élégante et fonctionnelle, pensée pour s’adapter à votre mode de vie. Son vaste espace de vie ouvert invite à la convivialité, tandis que 3 chambres et un bureau offrent un confort optimal. La suite parentale avec dressing et salle d’eau garantit un espace intime et raffiné.

Atouts pratiques : garage attenant, cellier, rangements intelligents. Pour un bien-être absolu, cette maison est conforme RE2025, équipée d’une PAC avec plancher chauffant et volets roulants électriques.

Le prix exclut les revêtements de sol des chambres, la cuisine aménagée, la peinture, la décoration, les raccordements, les frais de notaire et l’assurance dommages-ouvrage. (Piscine non contractuelle, non comprise dans le prix).

Imaginez votre futur chez-vous et contactez-nous pour concrétiser votre projet !

147 m2

3 ch

2 salles de bain

1 garage

Nous contacter pour cette maison

Plan(s) de la maison CAVIGNAC

Plan (maison 339)

Les + de la maison CAVIGNAC

Mais au fait on parle, on parle, mais avez-vous pensé
à commencer votre projet ?

Visites virtuelles 360°

Découvrez nos visites virtuelles 360° HD et explorez l’intérieur de nos maisons modernes. Naviguez de pièce en pièce, appréciez les volumes, les aménagements et les finitions de chaque espace. Une expérience immersive qui vous permet d’imaginer votre future maison neuve, depuis chez vous.

Toutes les visites virtuelles
Visites virtuelles 360°
Maison

Cette maison vous intéresse ?

Pour estimer le coût de construction de ce projet de maison, plus de renseignements ou prendre rendez-vous, remplissez le formulaire ci-dessous

Les champs marqués(*) sont obligatoires.