Offre spéciale

- 3 000€ sur vos frais de notaire

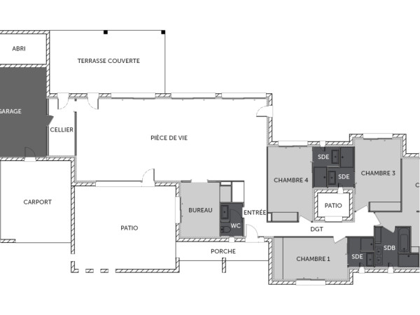
BROCAS maison de plain-pied de 5 chambres avec un garage

Lignes élégantes, volumes généreux et espaces optimisés : cette maison contemporaine est une invitation au confort et à la modernité. Avec ses 4 chambres, dont une suite parentale avec dressing et salle d’eau, elle s’adapte parfaitement à votre mode de vie. Sa pièce de vie de 70 m², baignée de lumière, promet des moments chaleureux en famille ou entre amis. Besoin d’un espace dédié au travail ou à vos passions ? Un bureau indépendant complète l’ensemble. À l’extérieur, profitez d’une terrasse couverte, d’un garage spacieux et d’un carport pratique. Pensée pour être 100% personnalisable, cette maison devient celle de vos envies.

Pour un confort optimal et conforme à la RE2025, cette maison dispose d’une PAC avec plancher chauffant et volets roulants électriques.  À noter : Le prix indiqué exclut les revêtements de sol des chambres, la cuisine aménagée, la peinture, la décoration, les raccordements, les frais de notaire et l’assurance dommages-ouvrage. (Piscine non contractuelle, non comprise dans le prix)

Contactez-nous pour en savoir plus et imaginez votre futur chez-vous !

192 m2

5 ch

4 salles de bain

1 garage

Nous contacter pour cette maison

Plan(s) de la maison BROCAS

Plan (maison 336)

Les + de la maison BROCAS

Mais au fait on parle, on parle, mais avez-vous pensé
à commencer votre projet ?

Visites virtuelles 360°

Découvrez nos visites virtuelles 360° HD et explorez l’intérieur de nos maisons modernes. Naviguez de pièce en pièce, appréciez les volumes, les aménagements et les finitions de chaque espace. Une expérience immersive qui vous permet d’imaginer votre future maison neuve, depuis chez vous.

Toutes les visites virtuelles
Visites virtuelles 360°
TS1713 - Brocas_Avant.jpg

Cette maison vous intéresse ?

Pour estimer le coût de construction de ce projet de maison, plus de renseignements ou prendre rendez-vous, remplissez le formulaire ci-dessous

Les champs marqués(*) sont obligatoires.