Offre spéciale

- 3 000€ sur vos frais de notaire

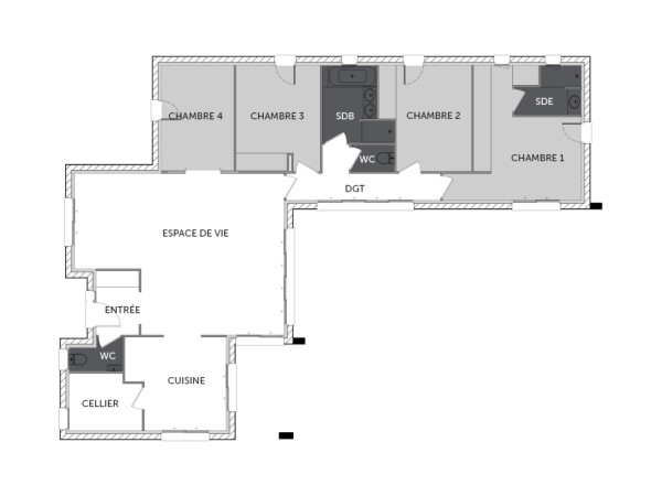
BIGANOS maison de plain-pied de 3 chambres sans garage

Maison en L composée d’une entrée séparée, wc, cellier, espace de vie de 52 m² avec cuisine semi séparée donnant sur une terrasse couverte, et partie nuit avec suite parentale et 2 chambres avec grande sdb, wc et bureau.

Pour vous assurer un confort de vie et conformément à la RE2025, nous avons choisi un mode de chauffage par PAC + plancher chauffant, volets roulants électriques. Prix hors peinture, décoration, revêtements de sol dans les chambres, cuisine équipée), frais de notaire, raccordements, dommage ouvrage.

(Piscine non contractuelle, non comprise dans le prix).

135 m2

3 ch

2 salles de bain

Nous contacter pour cette maison

Plan(s) de la maison BIGANOS

Plan (maison 334)

Les + de la maison BIGANOS

Mais au fait on parle, on parle, mais avez-vous pensé
à commencer votre projet ?

Visites virtuelles 360°

Découvrez nos visites virtuelles 360° HD et explorez l’intérieur de nos maisons modernes. Naviguez de pièce en pièce, appréciez les volumes, les aménagements et les finitions de chaque espace. Une expérience immersive qui vous permet d’imaginer votre future maison neuve, depuis chez vous.

Toutes les visites virtuelles
Visites virtuelles 360°
TS1709_BIGANOS_Arriere.jpg

Cette maison vous intéresse ?

Pour estimer le coût de construction de ce projet de maison, plus de renseignements ou prendre rendez-vous, remplissez le formulaire ci-dessous

Les champs marqués(*) sont obligatoires.