Offre spéciale

- 3 000€ sur vos frais de notaire

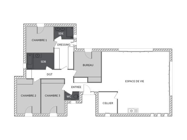
DONNEZAC maison de plain-pied de 4 chambres sans garage

Vous serez séduits par cette maison de plain-pied fonctionnelle, lumineuse avec de très beaux volumes. Un espace de vie de plus de 52 m² éclairé par ces larges baies vitrées, un coin cuisine avec un accès direct sur le cellier. Côté nuit, 1 chambre parentale avec dressing et salle d'eau privative, trois chambres.

Pour vous assurer un confort de vie et conformément à la RE2025, nous avons choisi un mode de chauffage par PAC + plancher chauffant, volets roulants électriques.

Prix hors peinture, décoration, revêtements de sol dans les chambres, cuisine équipée), frais de notaire, raccordements, dommage ouvrage.

(Piscine non contractuelle, non comprise dans le prix).

128 m2

4 ch

2 salles de bain

Nous contacter pour cette maison

Plan(s) de la maison DONNEZAC

Plan (maison 313)

Les + de la maison DONNEZAC

Mais au fait on parle, on parle, mais avez-vous pensé
à commencer votre projet ?

Visites virtuelles 360°

Découvrez nos visites virtuelles 360° HD et explorez l’intérieur de nos maisons modernes. Naviguez de pièce en pièce, appréciez les volumes, les aménagements et les finitions de chaque espace. Une expérience immersive qui vous permet d’imaginer votre future maison neuve, depuis chez vous.

Toutes les visites virtuelles
Visites virtuelles 360°
TS2009_DONNEZAC_Arriere.jpg

Cette maison vous intéresse ?

Pour estimer le coût de construction de ce projet de maison, plus de renseignements ou prendre rendez-vous, remplissez le formulaire ci-dessous

Les champs marqués(*) sont obligatoires.