Offre spéciale

- 3 000€ sur vos frais de notaire

BEAUZIAC maison à étage de 5 chambres avec deux garages

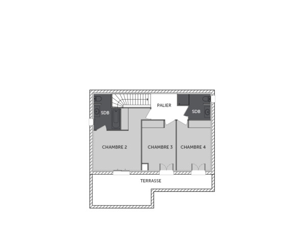
Cette maison familiale à étage de 180 m² habitables s'intégrera parfaitement au paysage. Une entrée vous accueille dans un espace de vie très lumineux de plus de 56 m², une cuisine semi-ouverte, une terrasse couverte, une suite parentale avec une salle de bains, une petite chambre ou bureau et un double garage avec grenier. A l'étage, un palier dessert 1 suite avec salle de bains privative, deux chambres, une salle de bains indépendante. Et le plus de cette maison, une terrasse couverte idéale pour des moments de détente.

Pour vous assurer un confort de vie et conformément à la RE2025, nous avons choisi un mode de chauffage par PAC + plancher chauffant, volets roulants électriques. Prix hors peinture, décoration, revêtements de sol dans les chambres, cuisine équipée), frais de notaire, raccordements, dommage ouvrage.

(Piscine non contractuelle, non comprise dans le prix).

180 m2

5 ch

3 salles de bain

2 garages

Nous contacter pour cette maison

Plan(s) de la maison BEAUZIAC

Plan (maison 309)
Plan (maison 309)

Les + de la maison BEAUZIAC

Mais au fait on parle, on parle, mais avez-vous pensé
à commencer votre projet ?

Visites virtuelles 360°

Découvrez nos visites virtuelles 360° HD et explorez l’intérieur de nos maisons modernes. Naviguez de pièce en pièce, appréciez les volumes, les aménagements et les finitions de chaque espace. Une expérience immersive qui vous permet d’imaginer votre future maison neuve, depuis chez vous.

Toutes les visites virtuelles
Visites virtuelles 360°
TS2006_BEAUZIAC_Arriere.jpg

Cette maison vous intéresse ?

Pour estimer le coût de construction de ce projet de maison, plus de renseignements ou prendre rendez-vous, remplissez le formulaire ci-dessous

Les champs marqués(*) sont obligatoires.