Offre spéciale

- 3 000€ sur vos frais de notaire

MARTILLAC maison de plain-pied de 4 chambres sans garage

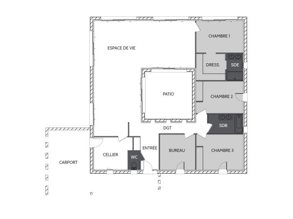
Vous serez séduits par l’aménagement de  cette charmante maison de plain-pied avec son patio central de 17 m² qui sépare un espace de vie de plus de 63 m² baigné de lumière grâce à ses trois baies vitrées et l’espace nuit composé de 4 chambres dont 1 suite parentale avec dressing et salle de bains privative, une salle d’eau. Le garage communique également avec la cuisine grâce à un cellier.

Pour vous assurer un confort de vie et conformément à la RE2025, nous avons choisi un mode de chauffage par PAC + plancher chauffant, volets roulants électriques. Prix hors peinture, décoration, revêtements de sol dans les chambres, cuisine équipée), frais de notaire, raccordements, dommage ouvrage.

(Piscine non contractuelle, non comprise dans le prix).

150 m2

4 ch

2 salles de bain

Nous contacter pour cette maison

Plan(s) de la maison MARTILLAC

Plan (maison 327)

Les + de la maison MARTILLAC

Mais au fait on parle, on parle, mais avez-vous pensé
à commencer votre projet ?

Visites virtuelles 360°

Découvrez nos visites virtuelles 360° HD et explorez l’intérieur de nos maisons modernes. Naviguez de pièce en pièce, appréciez les volumes, les aménagements et les finitions de chaque espace. Une expérience immersive qui vous permet d’imaginer votre future maison neuve, depuis chez vous.

Toutes les visites virtuelles
Visites virtuelles 360°
TS2001_Martillac_Arriere.jpg

Cette maison vous intéresse ?

Pour estimer le coût de construction de ce projet de maison, plus de renseignements ou prendre rendez-vous, remplissez le formulaire ci-dessous

Les champs marqués(*) sont obligatoires.