Offre spéciale

- 3 000€ sur vos frais de notaire

AGAC maison à étage de 4 chambres avec un garage

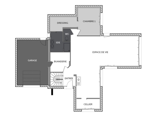
Villa contemporaine et très lumineuse. Au RDC, vous disposez d’une entrée confortable avec placard, donnant l’accès à l’escalier, ouvrant sur une grande pièce de vie de 60 m² très lumineuse. La cuisine est attenante à une arrière cuisine de plus de 4 m² fonctionnelle, en plus d’un cellier de 7 m² attenant au garage de 27 m². . Vous trouverez également au RDC une suite parentale de plus de 25 m² comprenant un beau dressing et une SDB avec grande douche à l’italienne, baignoire et double vasque et un WC Séparé. A l’étage, Une mezzanine pouvant accueillir un bureau dessert 3 chambres avec placards de 11 et 12m², une SDB avec baignoire et double vasques et un WC séparé.

Pour vous assurer un confort de vie et conformément à la RE2025, nous avons choisi un mode de chauffage par PAC + plancher chauffant, volets roulants électriques. Prix hors peinture, décoration, revêtements de sol dans les chambres, cuisine équipée), frais de notaire, raccordements, dommage ouvrage.(Piscine non contractuelle, non comprise dans le prix).

148 m2

4 ch

2 salles de bain

1 garage

Nous contacter pour cette maison

Plan(s) de la maison AGAC

Plan (maison 326)
Plan (maison 326)

Les + de la maison AGAC

Mais au fait on parle, on parle, mais avez-vous pensé
à commencer votre projet ?

Visites virtuelles 360°

Découvrez nos visites virtuelles 360° HD et explorez l’intérieur de nos maisons modernes. Naviguez de pièce en pièce, appréciez les volumes, les aménagements et les finitions de chaque espace. Une expérience immersive qui vous permet d’imaginer votre future maison neuve, depuis chez vous.

Toutes les visites virtuelles
Visites virtuelles 360°
MC1809TS - Agac_Arriere.jpg

Cette maison vous intéresse ?

Pour estimer le coût de construction de ce projet de maison, plus de renseignements ou prendre rendez-vous, remplissez le formulaire ci-dessous

Les champs marqués(*) sont obligatoires.