Offre spéciale

- 3 000€ sur vos frais de notaire

DONZAC maison à étage de 5 chambres avec un garage

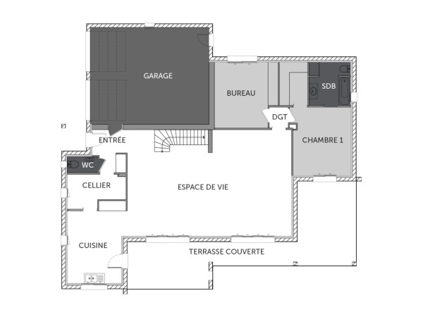
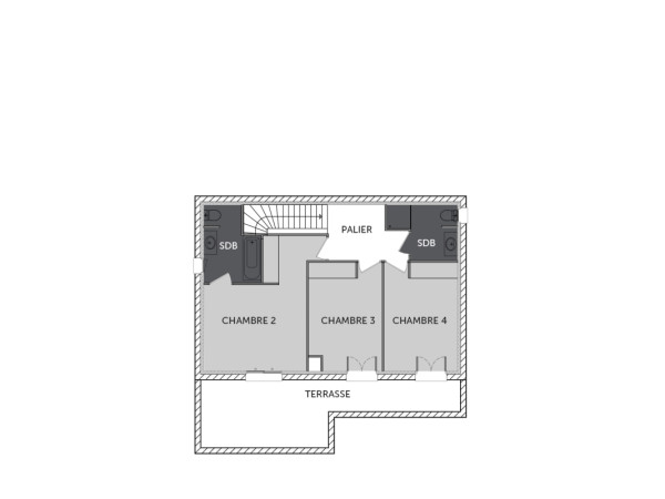
Prestations de qualité pour cette maison lumineuse, familiale de 162 m² habitables. Au rez-de-chaussée, grâce à ses deux baies vitrées un espace de vie communiquant avec  une cuisine semi-ouverte pourvue d'une arrière cuisine, une magnifique suite parentale avec dressing et salle d'eau. Un très beau garage avec un accès direct du cellier. A l'étage, 4 chambres, une salle de bains, et wc séparés.

Pour vous assurer un confort de vie et conformément à la RE2025, nous avons choisi un mode de chauffage par PAC + plancher chauffant, volets roulants électriques. Prix hors peinture, décoration, revêtements de sol dans les chambres, cuisine équipée), frais de notaire, raccordements, dommage ouvrage.

(Piscine non contractuelle, non comprise dans le prix).

162 m2

5 ch

2 salles de bain

1 garage

Nous contacter pour cette maison

Plan(s) de la maison DONZAC

Plan (maison 323)
Plan (maison 323)

Les + de la maison DONZAC

Mais au fait on parle, on parle, mais avez-vous pensé
à commencer votre projet ?

Visites virtuelles 360°

Découvrez nos visites virtuelles 360° HD et explorez l’intérieur de nos maisons modernes. Naviguez de pièce en pièce, appréciez les volumes, les aménagements et les finitions de chaque espace. Une expérience immersive qui vous permet d’imaginer votre future maison neuve, depuis chez vous.

Toutes les visites virtuelles
Visites virtuelles 360°
MC1805TS_Donzac_Arriere.jpg

Cette maison vous intéresse ?

Pour estimer le coût de construction de ce projet de maison, plus de renseignements ou prendre rendez-vous, remplissez le formulaire ci-dessous

Les champs marqués(*) sont obligatoires.