Offre spéciale

- 3 000€ sur vos frais de notaire

BARSAC maison à étage de 4 chambres avec un garage

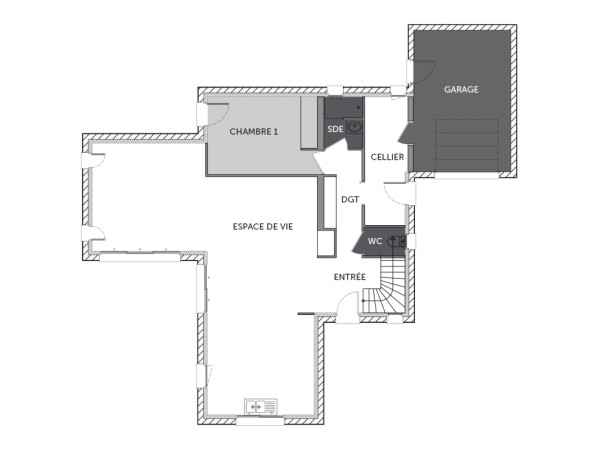
Vous serez séduits par cette maison familiale de 138 m², toiture mixte pour lui donner un esprit de modernité. Au rez-de-chaussée, une très belle entrée qui dessert un bel espace de vie en L de 53 m² environ, une chambre avec placards, une salle de bains, un cellier avec accès au garage. A l’étage 3 un palier vous conduit vers  3 belles chambres avec placards, une salle de bains et wc séparés.

Pour vous assurer un confort de vie et conformément à la RE2025, nous avons choisi un mode de chauffage par PAC + plancher chauffant, volets roulants électriques. Prix hors peinture, décoration, revêtements de sol dans les chambres, cuisine équipée), frais de notaire, raccordements, dommage ouvrage.

(Piscine non contractuelle, non comprise dans le prix).

138 m2

4 ch

2 salles de bain

1 garage

Nous contacter pour cette maison

Plan(s) de la maison BARSAC

Plan (maison 318)
Plan (maison 318)

Les + de la maison BARSAC

Mais au fait on parle, on parle, mais avez-vous pensé
à commencer votre projet ?

Visites virtuelles 360°

Découvrez nos visites virtuelles 360° HD et explorez l’intérieur de nos maisons modernes. Naviguez de pièce en pièce, appréciez les volumes, les aménagements et les finitions de chaque espace. Une expérience immersive qui vous permet d’imaginer votre future maison neuve, depuis chez vous.

Toutes les visites virtuelles
Visites virtuelles 360°
MC1802TS - BARSAC_Arriere.jpg

Cette maison vous intéresse ?

Pour estimer le coût de construction de ce projet de maison, plus de renseignements ou prendre rendez-vous, remplissez le formulaire ci-dessous

Les champs marqués(*) sont obligatoires.