Offre spéciale

- 3 000€ sur vos frais de notaire

BRIVOS maison à étage de 4 chambres avec un garage

Maison d'architecte résolument contemporaine, idéalement agencée avec deux volumes distincts. Une partie nuit avec quatre grandes chambres lumineuses et fonctionnelles, une suite parentale singulière offrant une baignoire centrale avec vue sur la piscine. A l'opposé du coin nuit, on trouvera une grande pièce à vivre séparée en deux espaces par une verrière de type industriel. Un salon convivial où l'on aimera se retrouver, une cuisine agréable avec son ilot central pour des moments de partage, celle-ci donnant sur la piscine pour des déjeuners en famille et entre amis. A l'étage, un bel espace lumineux transformé soit en bureau, salle de jeux pour les enfants ou pour des moments de détente.

Pour vous assurer un confort de vie et conformément à la RE2025, nous avons choisi un mode de chauffage par PAC + plancher chauffant, volets roulants électriques. Prix hors peinture, décoration, revêtements de sol dans les chambres, cuisine équipée), frais de notaire, raccordements, dommage ouvrage.

(Piscine non contractuelle, non comprise dans le prix).

165 m2

4 ch

1 salle de bain

1 garage

Nous contacter pour cette maison

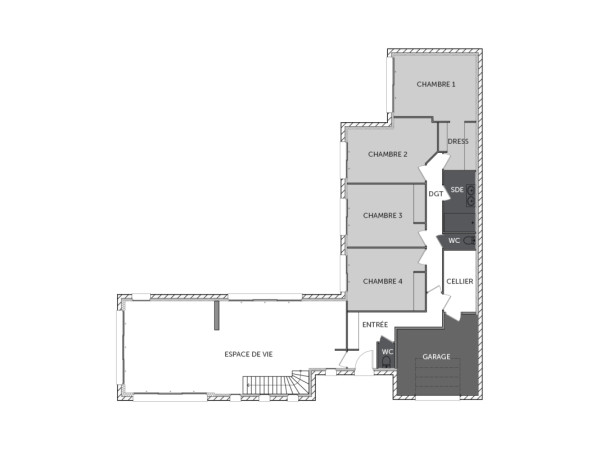
Plan(s) de la maison BRIVOS

Plan (maison 307)
Plan (maison 307)

Les + de la maison BRIVOS

Mais au fait on parle, on parle, mais avez-vous pensé
à commencer votre projet ?

Visites virtuelles 360°

Découvrez nos visites virtuelles 360° HD et explorez l’intérieur de nos maisons modernes. Naviguez de pièce en pièce, appréciez les volumes, les aménagements et les finitions de chaque espace. Une expérience immersive qui vous permet d’imaginer votre future maison neuve, depuis chez vous.

Toutes les visites virtuelles
Visites virtuelles 360°
MC1627TS_Brivos_Arriere.jpg

Cette maison vous intéresse ?

Pour estimer le coût de construction de ce projet de maison, plus de renseignements ou prendre rendez-vous, remplissez le formulaire ci-dessous

Les champs marqués(*) sont obligatoires.