Offre spéciale

- 3 000€ sur vos frais de notaire

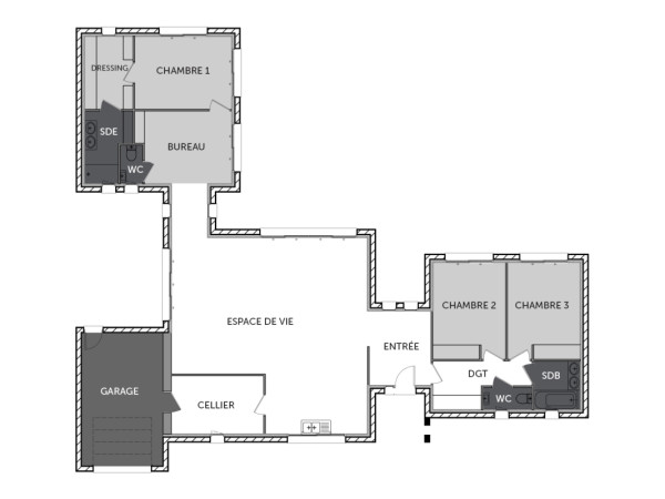
BALIZAC maison de plain-pied de 4 chambres avec un garage

Avec son architecture en L, cette maison optimise chaque espace pour conjuguer intimité et ouverture sur l’extérieur. Sa pièce de vie de 58 m², lumineuse et conviviale, devient le cœur du foyer, offrant un cadre idéal pour des moments partagés. Côté nuit, une suite parentale avec dressing et salle d’eau préserve votre intimité, tandis que deux autres chambres se répartissent harmonieusement autour d’une seconde salle de bain. Un bureau indépendant ajoute une touche de praticité, idéal pour le télétravail ou les loisirs. Un garage attenant, un cellier et des espaces optimisés complètent cette maison 100 % personnalisable, pensée pour s’adapter à vos envies et à votre mode de vie.

Pour un confort optimal et conforme à la RE2025, cette maison dispose d’une PAC avec plancher chauffant et volets roulants électriques.  À noter : Le prix indiqué exclut les revêtements de sol des chambres, la cuisine aménagée, la peinture, la décoration, les raccordements, les frais de notaire et l’assurance dommages-ouvrage. (Piscine non contractuelle, non comprise dans le prix)

Contactez-nous dès aujourd’hui pour concrétiser votre projet et façonner votre futur chez-vous !

147 m2

4 ch

2 salles de bain

1 garage

Nous contacter pour cette maison

Plan(s) de la maison BALIZAC

Plan (maison 306)

Les + de la maison BALIZAC

Mais au fait on parle, on parle, mais avez-vous pensé
à commencer votre projet ?

Visites virtuelles 360°

Découvrez nos visites virtuelles 360° HD et explorez l’intérieur de nos maisons modernes. Naviguez de pièce en pièce, appréciez les volumes, les aménagements et les finitions de chaque espace. Une expérience immersive qui vous permet d’imaginer votre future maison neuve, depuis chez vous.

Toutes les visites virtuelles
Visites virtuelles 360°
TS1905_Balizac_Arriere.jpg

Cette maison vous intéresse ?

Pour estimer le coût de construction de ce projet de maison, plus de renseignements ou prendre rendez-vous, remplissez le formulaire ci-dessous

Les champs marqués(*) sont obligatoires.