Offre spéciale

- 3 000€ sur vos frais de notaire

GUILLOS maison à étage de 4 chambres avec un garage

Une architecture qui allie élégance et fonctionnalité !

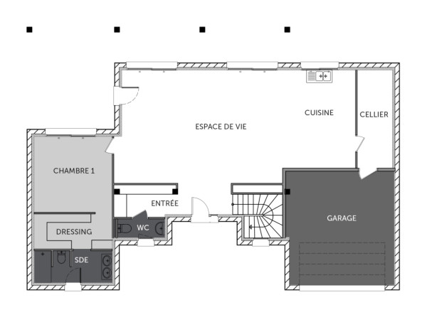
Laissez-vous séduire par cette maison contemporaine aux lignes épurées, où chaque espace est pensé pour optimiser lumière et confort. Avec 4 chambres, dont une suite parentale avec dressing et salle d’eau, ainsi qu’un espace de vie spacieux et convivial, elle répond aux attentes des familles modernes. Son design harmonieux intègre de grandes ouvertures sur l’extérieur, créant une connexion fluide entre intérieur et jardin. Fonctionnelle et personnalisable, elle s’adapte à votre mode de vie et vos envies. Un projet conçu pour s’intégrer parfaitement à votre terrain, alliant modernité et performance énergétique.

Pour un confort optimal et conforme à la RE2025, cette maison dispose d’une PAC avec plancher chauffant au rez-de-chaussée, radiateurs à l’étage et volets roulants électriques. À noter : Le prix indiqué exclut les revêtements de sol des chambres, la cuisine aménagée, la peinture, la décoration, les raccordements, les frais de notaire et l’assurance dommages-ouvrage. (Piscine non contractuelle, non incluse dans le prix.)

Besoin d’inspiration ? Contactez-nous dès maintenant pour concrétiser votre projet !

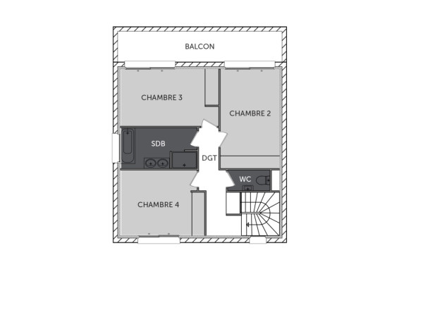
151 m2

4 ch

2 salles de bain

1 garage

Nous contacter pour cette maison

Plan(s) de la maison GUILLOS

Plan (maison 302)
Plan (maison 302)

Les + de la maison GUILLOS

Mais au fait on parle, on parle, mais avez-vous pensé
à commencer votre projet ?

Visites virtuelles 360°

Découvrez nos visites virtuelles 360° HD et explorez l’intérieur de nos maisons modernes. Naviguez de pièce en pièce, appréciez les volumes, les aménagements et les finitions de chaque espace. Une expérience immersive qui vous permet d’imaginer votre future maison neuve, depuis chez vous.

Toutes les visites virtuelles
Visites virtuelles 360°
TS1904TT_Guillos_Arriere.jpg

Cette maison vous intéresse ?

Pour estimer le coût de construction de ce projet de maison, plus de renseignements ou prendre rendez-vous, remplissez le formulaire ci-dessous

Les champs marqués(*) sont obligatoires.