Offre spéciale

- 3 000€ sur vos frais de notaire

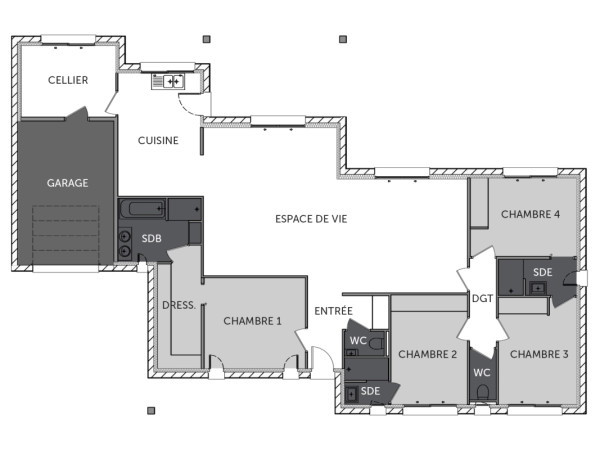
AUBIAC maison de plain-pied de 4 chambres avec un garage

Charmante maison de plain-pied fonctionnelle avec garage, très lumineuse, qui saura vous séduire par ses beaux volumes. Un très bel espace de vie avec cuisine ouverte de plus de 63 m² baigné de lumière grâce à ses deux baies vitrées, accès direct sur la terrasse. Côté nuit, une suite parentale avec dressing, salle d'eau, 1 chambre avec salle d'eau privative et deux chambres avec salle de bains.

Pour vous assurer un confort de vie et conformément à la RE2025, nous avons choisi un mode de chauffage par PAC + plancher chauffant, volets roulants électriques. Prix hors peinture, décoration, revêtements de sol dans les chambres, cuisine équipée), frais de notaire, raccordements, dommage ouvrage.

(Piscine non contractuelle, non comprise dans le prix).

145 m2

4 ch

2 salles de bain

1 garage

Nous contacter pour cette maison

Plan(s) de la maison AUBIAC

Plan (maison 299)

Les + de la maison AUBIAC

Mais au fait on parle, on parle, mais avez-vous pensé
à commencer votre projet ?

Visites virtuelles 360°

Découvrez nos visites virtuelles 360° HD et explorez l’intérieur de nos maisons modernes. Naviguez de pièce en pièce, appréciez les volumes, les aménagements et les finitions de chaque espace. Une expérience immersive qui vous permet d’imaginer votre future maison neuve, depuis chez vous.

Toutes les visites virtuelles
Visites virtuelles 360°
TS1902 - Aubiac - Arriere.jpg

Cette maison vous intéresse ?

Pour estimer le coût de construction de ce projet de maison, plus de renseignements ou prendre rendez-vous, remplissez le formulaire ci-dessous

Les champs marqués(*) sont obligatoires.