Offre spéciale

- 3 000€ sur vos frais de notaire

GISCOS maison à étage de 4 chambres avec un garage

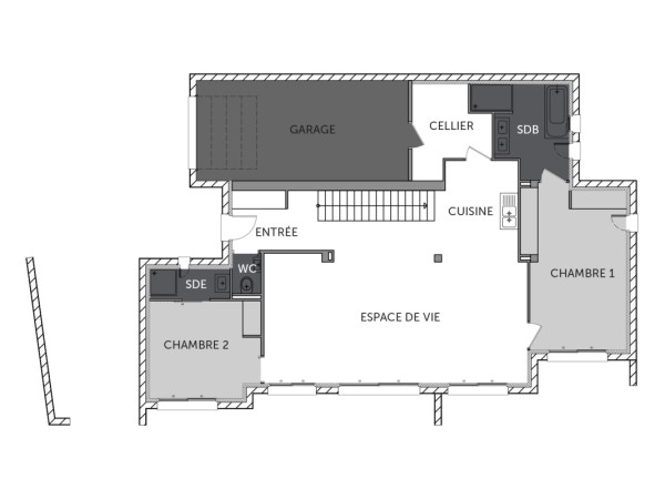
Charmante maison de 140 m², agréable à vivre, fonctionnelle et très lumineuse grâce à ses nombreuses ouvertures. Au rez-de-chaussée une entrée vous conduit dans un très bel espace de vie principale avec cuisine ouverte qui a un accès direct au cellier et au garage ; 1 chambre parentale avec dressing, salle de bains avec baignoire, douche à l'italienne et à l'opposé une autre chambre avec salle d'eau privative. A l'étage, un dégagement dessert deux chambres, une salle de bains et wc séparés.

Pour vous assurer un confort de vie et conformément à la RE2025, nous avons choisi un mode de chauffage par PAC + plancher chauffant, volets roulants électriques. Prix hors peinture, décoration, revêtements de sol dans les chambres, cuisine équipée), frais de notaire, raccordements, dommage ouvrage.

(Piscine non contractuelle, non comprise dans le prix).

140 m2

4 ch

2 salles de bain

1 garage

Nous contacter pour cette maison

Plan(s) de la maison GISCOS

Plan (maison 298)
Plan (maison 298)

Les + de la maison GISCOS

Mais au fait on parle, on parle, mais avez-vous pensé
à commencer votre projet ?

Visites virtuelles 360°

Découvrez nos visites virtuelles 360° HD et explorez l’intérieur de nos maisons modernes. Naviguez de pièce en pièce, appréciez les volumes, les aménagements et les finitions de chaque espace. Une expérience immersive qui vous permet d’imaginer votre future maison neuve, depuis chez vous.

Toutes les visites virtuelles
Visites virtuelles 360°
MC1915TS_Giscos_Arriere_02.jpg

Cette maison vous intéresse ?

Pour estimer le coût de construction de ce projet de maison, plus de renseignements ou prendre rendez-vous, remplissez le formulaire ci-dessous

Les champs marqués(*) sont obligatoires.