Offre spéciale

- 3 000€ sur vos frais de notaire

CITROS maison à étage de 4 chambres avec un garage

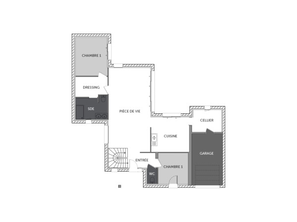
Maison moderne et lumineuse avec une toiture zinc Anthracite. Au RDC, l’entrée avec placard dessert un WC séparé et l’escalier. Vous disposez d’une belle pièce de vie de plus de 52m², d’un bureau de 9m², une suite parentale 23 m² avec dressing, SDE, WC. La cuisine est attenante à un cellier donnant sur un garage de 15 m² et un carport pouvant accueillir une 2e voiture. A l’étage, un pallier distribue 2 chambres avec placards de 11.5m², une SDE avec douche et double vasque et un WC séparé.

Pour vous assurer un confort de vie et conformément à la RE2025, nous avons choisi un mode de chauffage par PAC + plancher chauffant, volets roulants électriques. Prix hors peinture, décoration, revêtements de sol dans les chambres, cuisine équipée), frais de notaire, raccordements, dommage ouvrage.

(Piscine non contractuelle, non comprise dans le prix).

125 m2

4 ch

2 salles de bain

1 garage

Nous contacter pour cette maison

Plan(s) de la maison CITROS

Plan (maison 311)
Plan (maison 311)

Les + de la maison CITROS

Mais au fait on parle, on parle, mais avez-vous pensé
à commencer votre projet ?

Visites virtuelles 360°

Découvrez nos visites virtuelles 360° HD et explorez l’intérieur de nos maisons modernes. Naviguez de pièce en pièce, appréciez les volumes, les aménagements et les finitions de chaque espace. Une expérience immersive qui vous permet d’imaginer votre future maison neuve, depuis chez vous.

Toutes les visites virtuelles
Visites virtuelles 360°
MC1904TS - Citros_jour_Arriere.jpg

Cette maison vous intéresse ?

Pour estimer le coût de construction de ce projet de maison, plus de renseignements ou prendre rendez-vous, remplissez le formulaire ci-dessous

Les champs marqués(*) sont obligatoires.